⚡Przestronne⚡Widne⚡Ciche⚡Świetnie zaprojektowane⚡

Mieszkanie na sprzedaż
1 300 000,00 PLN , Pow. 137,33 m2
Drukuj ofertę
Drukuj ofertę
Typ nieruchomości:
Mieszkanie
Powierzchnia:
137,33 m2
Typ transakcji:
sprzedaż
Liczba pokoi:
5
Lokalizacja:
Ząbki , Jasna
Rok budowy:
2018
Piętro:
1 na 2
Numer oferty:
GSN/253186
Cena za m2:
9 466,25 PLN
Pięciopokojowe mieszkanie bezczynszowe w Ząbkach przy ul. Jasnej.
Mieszkanie w budynku dwulokalowym, usytuowane na drugiej i trzeciej kondygnacji (pierwsze i drugie piętro). Oprócz dużego balkonu do mieszkania przynależy niewielki ogródek.
Świetnie zaprojektowane.
Na pierwszej, użytkowanej kondygnacji do dyspozycji pozostaje duży salon (z wyjściem na balkon) połączony z aneksem kuchennym; pokój (obecnie gabinet), duża widna łazienka oraz hol.
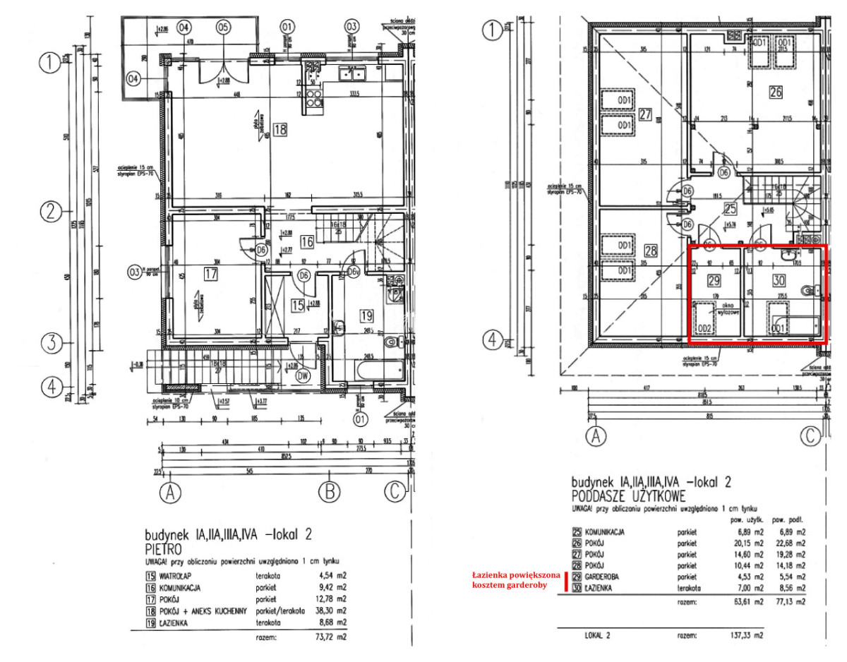
Na drugiej kondygnacji znajdują się trzy sypialnie z oknami dachowymi oraz duża łazienka z wanną z hydromasażem, prysznicem i sauną (łazienka jest powiększona kosztem garderoby). Dodatkowo do wykorzystania jest strych (miejsce na przechowywanie).

Mieszkanie wykończone w wysokim standardzie. Na podłogach parkiet i gres. Wysokość 270 cm.
Ekspozycje względem stron świata:
• pierwsza kondygnacja: pokój dzienny - południe, wschód, pokój - wschód, łazienka - północ
• druga kondygnacja: łazienka - północ, dwie sypialnie - wschód, trzecia sypialnia - południe

Mieszkanie może pozostać częściowo umeblowane (meble nie mają wpływu na cenę).

Powierzchnię mieszkania (137,33 mkw.) stanowią:
Pierwsza kondygnacja
• salon z aneksem kuchennym
• pokój - 12,78 mkw.- 38,30 mkw.
• łazienka - 8,68 mkw.
• hol (wiatrołap, komunikacja) - 13,96 mkw.

Druga kondygnacja
• pokój - 20,15 mkw. (powierzchnia podłogi 22,68 mkw.)
• pokój - 14,60 mkw. (powierzchnia podłogi 19,28 mkw.)
• pokój - 10,44 mkw. (powierzchnia podłogi 14,18 mkw.)
• łazienka z sauną - 10,07 mkw. (powierzchnia podłogi 14,10 mkw.) - na planie mieszkania oddzielnie łazienka i garderoba (powierzchnia garderoby powiększyła łazienkę)

Do mieszkania przynależy jedno miejsce parkingowe naziemne (do wyłącznego korzystania).
Dodatkowym atutem jest niewielki ogródek.
Status prawny: własność.

Budynek
Bliźniak dwulokalowy z 2018 roku. Osiedle zamknięte. Domofon. Brama wjazdowa (pilot).

Lokalizacja
Ząbki, ul. Jasna. W pobliżu dużo terenów zielonych.
Pełna infrastruktura do codziennego życia. Placówki edukacyjne i placówki ochrony zdrowia. Sklepy, usługi, itp.

Komunikacja
Autobus linii 199.

⚡W przypadku, gdy ta nieruchomość nie spełnia Twoich oczekiwań, skontaktuj się z Agentem i przedstaw mu swoje kryteria.
⚡Jeżeli natomiast jesteś zainteresowany sprzedażą lub wynajmem swojej nieruchomości, zapytaj Agenta o możliwość współpracy.
⚡Nasze usługi świadczymy w oparciu o umowę pośrednictwa, która gwarantuje Państwu bezpieczeństwo transakcji oraz pełną opiekę naszego Agenta.
⚡Za wykonaną usługę pobieramy wynagrodzenie zgodnie z warunkami uzgodnionymi w zawartej umowie, chyba, że tytułowe zdjęcie opatrzone jest znacznikiem "bez prowizji".
⚡Prezentowane oferty nie stanowią oferty w rozumieniu Kodeksu Cywilnego. Dokładamy wszelkich starań, żeby informacje zawarte w ofercie były możliwie dokładne i aktualne. Jednakże z uwagi na fakt, że część z tych informacji pochodzi od osób trzecich i nie jesteśmy w stanie ich zweryfikować, Glass Spider nieruchomości Sp. z o.o. nie ponosi odpowiedzialności za ich dokładność i aktualność.
Nieprawidłowy adres E-mail