⚡Miasteczko Wilanów⚡Patio⚡Osiedle strzeżone⚡

Mieszkanie na sprzedaż
1 290 000,00 PLN , Pow. 58,50 m2
Drukuj ofertę
Drukuj ofertę
Typ nieruchomości:
Mieszkanie
Powierzchnia:
58,50 m2
Typ transakcji:
sprzedaż
Liczba pokoi:
3
Lokalizacja:
Warszawa Wilanów , Adama Branickiego
Rok budowy:
2011
Piętro:
1 na 4
Numer oferty:
GSN/311554
Cena za m2:
22 051,28 PLN
Funkcjonalne i eleganckie 3-pokojowe mieszkanie zlokalizowane w jednej z najbardziej cenionych części warszawskiego Wilanowa - przy ul. Branickiego. Lokal usytuowany jest na 1. piętrze nowoczesnego budynku o podwyższonym standardzie.

Nieruchomość znajduje się w zadbanym, reprezentacyjnym budynku z recepcją oraz całodobową ochroną. Do dyspozycji mieszkańców jest kameralne, zielone patio z placem zabaw - idealne rozwiązanie dla rodzin z dziećmi. Całość otoczona jest starannie zaprojektowaną zielenią, co zapewnia poczucie prywatności i komfortu.


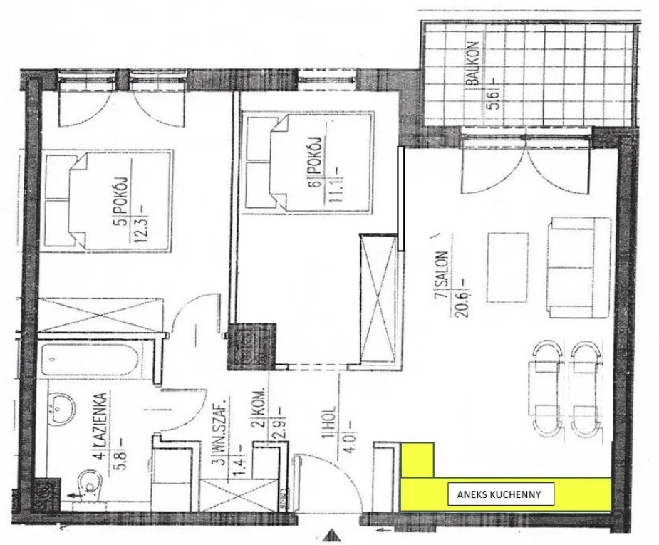
Rozkład pomieszczeń:
Łączna powierzchnia mieszkania wynosi 58,5 mkw., na którą składają się:
• Salon z aneksem kuchennym - 20,6 mkw.,
• Sypialnia I - 11,1 mkw.,
• Sypialnia II - 12,3 mkw.,
• Łazienka - 5,8 mkw.,
• Garderoba - 1,5 mkw.,
• Przedpokój - 6,9 mkw.

Dodatkowym atutem jest przestronny balkon o powierzchni 5,6 mkw., idealny do wypoczynku.

Dodatkowe udogodnienia:
• Komórka lokatorska o powierzchni 5 mkw. - dodatkowo płatna 20 000 zł,
• Miejsce postojowe w garażu podziemnym - dodatkowo płatne 50 000 zł.

Mieszkańcy mają możliwość wynajęcia dodatkowego miejsca parkingowego (garażowego lub naziemnego) bezpośrednio od Wspólnoty.

Lokalizacja:

Wilanów to jedna z najbardziej pożądanych dzielnic Warszawy - łącząca nowoczesną infrastrukturę z dużą ilością terenów zielonych. W bezpośrednim sąsiedztwie znajdują się liczne sklepy, restauracje, punkty usługowe, szkoły publiczne i prywatne, przedszkola oraz żłobki.
Doskonała komunikacja - w pobliżu przystanki autobusowe i tramwajowe, a także ścieżki rowerowe.


⚡W przypadku, gdy ta nieruchomość nie spełnia Twoich oczekiwań, skontaktuj się z Agentem i przedstaw mu swoje kryteria.
⚡Jeżeli natomiast jesteś zainteresowany sprzedażą lub wynajmem swojej nieruchomości, zapytaj Agenta o możliwość współpracy.
⚡Nasze usługi świadczymy w oparciu o umowę pośrednictwa, która gwarantuje Państwu bezpieczeństwo transakcji oraz pełną opiekę naszego Agenta.
⚡Za wykonaną usługę pobieramy wynagrodzenie zgodnie z warunkami uzgodnionymi w zawartej umowie, chyba, że tytułowe zdjęcie opatrzone jest znacznikiem "bez prowizji".
⚡Prezentowane oferty nie stanowią oferty w rozumieniu Kodeksu Cywilnego. Dokładamy wszelkich starań, żeby informacje zawarte w ofercie były możliwie dokładne i aktualne. Jednakże z uwagi na fakt, że część z tych informacji pochodzi od osób trzecich i nie jesteśmy w stanie ich zweryfikować, Glass Spider nieruchomości Sp. z o.o. nie ponosi odpowiedzialności za ich dokładność i aktualność.
Nieprawidłowy adres E-mail