⚡Po remoncie⚡Inwestycyjne⚡Funkcjonalne⚡

Mieszkanie na sprzedaż
650 000,00 PLN , Pow. 31,50 m2
Drukuj ofertę
Drukuj ofertę
Typ nieruchomości:
Mieszkanie
Powierzchnia:
31,50 m2
Typ transakcji:
sprzedaż
Liczba pokoi:
1
Lokalizacja:
Warszawa Mokotów , Ksawerów
Rok budowy:
1988
Piętro:
2 na 10
Numer oferty:
GSN/239122
Cena za m2:
20 634,92 PLN
Ustawna kawalerka o powierzchni 31,5 mkw., położona na 2. piętrze z 10 w zadbanym bloku z 1988 roku, przy ul. Ksawerów - w jednej z najlepszych lokalizacji Mokotowa. Mieszkanie przeszło generalny remont w 2019 roku i jest w pełni wyposażone.

Mieszkanie jest idealne zarówno do zamieszkania od zaraz, jak i pod wynajem.

Układ pozwala na wydzielenie oddzielnej sypialni oraz salonu z aneksem kuchennym, co znacząco zwiększa funkcjonalność i atrakcyjność mieszkania.

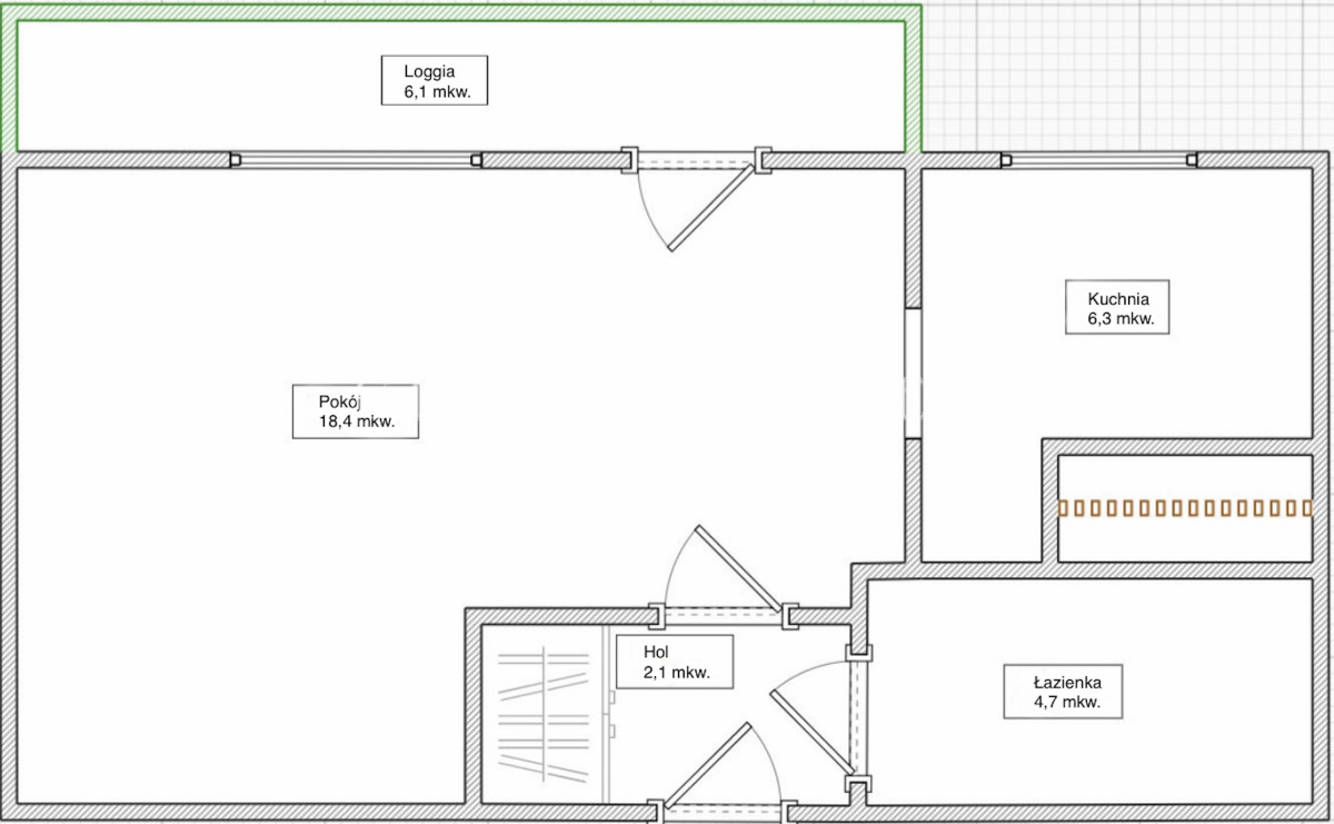
Rozkład mieszkania:
• Ustawny, jasny pokój - 18,4 mkw.,
• Oddzielna, widna kuchnia -6,3 mkw.,
• Przestronna łazienka z prysznicem -4,7 mkw.,
• Przedpokój z pojemną szafą na wymiar - 2,1 mkw.,
• Duża loggia -6,1 mkw.

Budynek:
Blok posiada dwie windy i czystą, zadbaną klatkę schodową, co dodatkowo podnosi komfort codziennego użytkowania.

Lokalizacja:
Mokotów to jedna z najbardziej pożądanych dzielnic Warszawy, zapewniająca doskonałą komunikację z centrum miasta: w pobliżu metro, tramwaje i autobusy.
W najbliższej okolicy znajdują się sklepy, restauracje, kawiarnie, tereny zielone oraz Galeria Mokotów. Lokalizacja sprawia, że mieszkanie jest idealne zarówno do zamieszkania, jak i jako inwestycja pod wynajem krótkoterminowy lub długoterminowy.


Mieszkanie łączy komfort, funkcjonalność i świetną lokalizację, oferując gotowe rozwiązanie do życia od zaraz i duży potencjał aranżacyjny.


⚡W przypadku, gdy ta nieruchomość nie spełnia Twoich oczekiwań, skontaktuj się z Agentem i przedstaw mu swoje kryteria.
⚡Jeżeli natomiast jesteś zainteresowany sprzedażą lub wynajmem swojej nieruchomości, zapytaj Agenta o możliwość współpracy.
⚡Nasze usługi świadczymy w oparciu o umowę pośrednictwa, która gwarantuje Państwu bezpieczeństwo transakcji oraz pełną opiekę naszego Agenta.
⚡Za wykonaną usługę pobieramy wynagrodzenie zgodnie z warunkami uzgodnionymi w zawartej umowie, chyba, że tytułowe zdjęcie opatrzone jest znacznikiem "bez prowizji".
⚡Prezentowane oferty nie stanowią oferty w rozumieniu Kodeksu Cywilnego. Dokładamy wszelkich starań, żeby informacje zawarte w ofercie były możliwie dokładne i aktualne. Jednakże z uwagi na fakt, że część z tych informacji pochodzi od osób trzecich i nie jesteśmy w stanie ich zweryfikować, Glass Spider nieruchomości Sp. z o.o. nie ponosi odpowiedzialności za ich dokładność i aktualność.
Nieprawidłowy adres E-mail