⚡Ostatnie 2 pokoje⚡POD KLUCZ⚡

Mieszkanie na sprzedaż
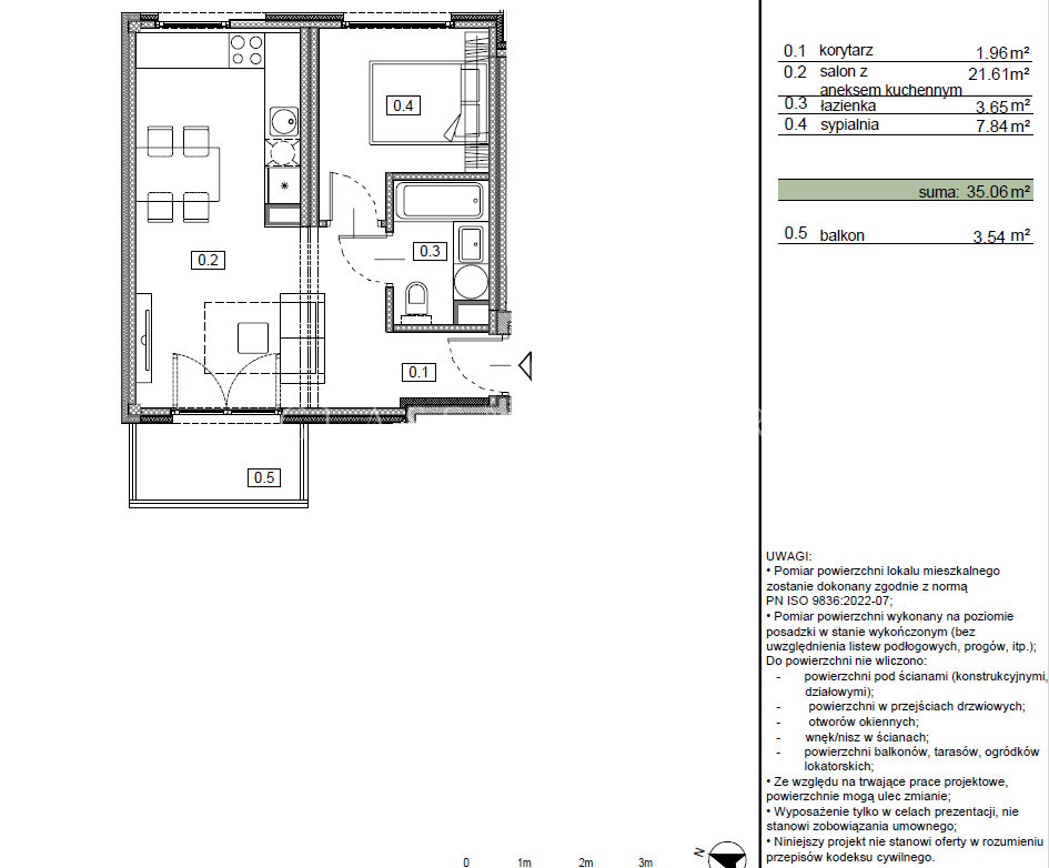
546 936,00 PLN , Pow. 35,06 m2
Drukuj ofertę
Drukuj ofertę
Typ nieruchomości:
Mieszkanie
Powierzchnia:
35,06 m2
Typ transakcji:
sprzedaż
Liczba pokoi:
2
Lokalizacja:
Warszawa Białołęka , Kartograficzna
Rok budowy:
2025
Piętro:
1 na 2
Numer oferty:
GSN/495035
Cena za m2:
15 600,00 PLN
Ostatnie 2-pokojowe mieszkanie w inwestycji - wykończone pod klucz. 
NIE POBIERAMY WYNAGRODZENIA OD KUPUJĄCEGO, A JEDNOCZESNIE ZAPEWNIAMY WSPARCIE PODCZAS PROCESU ZAKUPU.

Eko-rozwiązania w mieszkaniach pozwalają na obniżenie kosztów energii elektrycznej, ogrzewania oraz wody. Ogrzewanie podłogowe zwiększa komfort życia, szczególnie dla alergików. 

Standard wykończenia: 
• ściany pomalowane na biały kolor
• podłogi wyłożone wysokiej jakości panelami i listwami przypodłogowymi
• drzwi wewnętrzne białe
• łazienka w pełni wykończona płytkami z kamieni sztucznych, wyposażona w  WC, umywalkę z oraz komplet armatury łazienkowej.

Powierzchnia mieszkania (35,06 mkw.):
• hol - 1,96 mkw.
• pokój z aneksem kuchennym - 21,61 mkw.
• pokój - 7,84 mkw.
• łazienka - 3,65 mkw.
Dodatkowo:
• balkon - 3,54 mkw.

Komórka lokatorska w cenie - 13 072 zł

Miejsce postojowe (zakup obligatoryjny) - 30 000 zł. 

Budynki:
Trzykondygnacyjne budynki powstają w technologii modułowej drewnianej, przyjaznej dla środowiska i dla mieszkańców. Do budowy zastosowane są naturalne, podlegające recyklingowi materiały: drewno, wełna mineralna, która zapewnia optymalne właściwości cieplne, oraz płyty gipsowo-włóknowe; wszystkie produkowane na bazie naturalnych surowców, przy wykorzystaniu biotechnologii bazującej na naturalnych komponentach. Wolne od formaldehydu, fenolu i akrylu, dodatków sztucznych barwników oraz substancji rozjaśniających, bez dodatków klejów. Dzięki temu są praktycznie bezemisyjne. 

Osiedle:
Osiedle będzie składać się z 4 budynków mieszkalnych - A,B,C,D, w tym 3 budynki z garażem podziemnym (segment B, C, D). W segmencie A dostępne będą mieszkania z ogródkiem. 
• kameralne miejsce
• ekologiczne i energooszczędne
• budynki ogrzewane pompami ciepła, mają zainstalowane panele fotowoltaiczne
• w mieszkaniach ogrzewanie podłogowe
• niebanalna architektura, nowoczesne wzornictwo i interesujące detale
• imponująca funkcjonalność
• dobra lokalizacja
• dobry dojazd komunikacją miejską - niedaleko trasa Toruńska 
dojazd do Metra Kondratowicza - 15 min. autobusem nr 240
• w pobliżu tereny zielone, cisza i spokój
• blisko centrów handlowo-usługowych
• przedszkola i szkoły na wyciągnięcie ręki
• młoda społeczność dzielnicy
• osiedle zamknięte. 

Lokalizacja:
Białołęka ma nowoczesną zabudowę, bogatą infrastrukturę handlowo-usługową i dobre połączenie z innymi częściami miasta. W pobliżu, sklepy, kina, restauracje, kawiarnie, a także szkoły, przedszkola, zarówno publiczne jak i prywatne, dzięki czemu nie trzeba martwić się o codzienne dojazdy. I co najważniejsze żyje się tu zdrowo, cicho i spokojnie. Białołęka będzie idealnym wyborem dla młodych rodzin oraz wszystkich, którzy cenią spokój i bliskość przyrody,

W odległości od 7 do 10 min. jazdy samochodem znajdują się:
• Factory Annopol - najlepsze centrum outletowe w Polsce
• Atrium Targówek
• Decathlon Targówek - sklep sportowy
• CH Prima Marki
• Auchan Modlińska
• Sklepy meblowe: JYSK, IKEA, Agata Meble
• Multikino
• Miejskie Centrum Sportu.

⚡W przypadku, gdy ta nieruchomość nie spełnia Twoich oczekiwań, skontaktuj się z Agentem i przedstaw mu swoje kryteria.
⚡Jeżeli natomiast jesteś zainteresowany sprzedażą lub wynajmem swojej nieruchomości, zapytaj Agenta o możliwość współpracy.
⚡Nasze usługi świadczymy w oparciu o umowę pośrednictwa, która gwarantuje Państwu bezpieczeństwo transakcji oraz pełną opiekę naszego Agenta.
⚡Za wykonaną usługę pobieramy wynagrodzenie zgodnie z warunkami uzgodnionymi w zawartej umowie, chyba, że tytułowe zdjęcie opatrzone jest znacznikiem "bez prowizji".
⚡Prezentowane oferty nie stanowią oferty w rozumieniu Kodeksu Cywilnego. Dokładamy wszelkich starań, żeby informacje zawarte w ofercie były możliwie dokładne i aktualne. Jednakże z uwagi na fakt, że część z tych informacji pochodzi od osób trzecich i nie jesteśmy w stanie ich zweryfikować, Glass Spider nieruchomości Sp. z o.o. nie ponosi odpowiedzialności za ich dokładność i aktualność.
Adres strony www: https:// NULL
Nieprawidłowy adres E-mail